Всегда актуальные цены, без скрытых платежей
При заключении договора на строительство
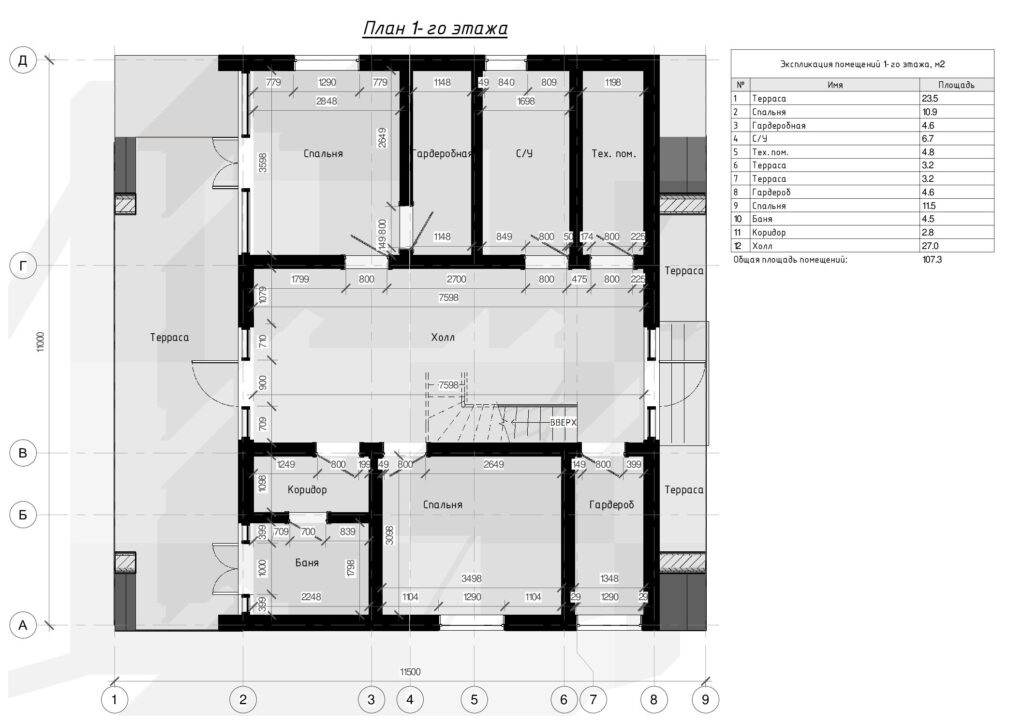
Одноэтажный дом на УШП по проекту Villa Logen
Узнайте стоимость дома через 15 минут
Заполните форму и мы предоставим вам всю необходимую информацию о стоимости дома, который вас интересует.
Описание проекта
Фундамент (в зависимости от комплектации): бетонные либо железные сваи 150 х 150 х 2500. Свайно-ростверковый фундамент. Бетонная плита.
Основание (Обвязка): Обвязка из пакетов 50х150мм. Гидроизоляция между сваями и обвязкой.
Полы в доме (в зависимости от комплектации):
При свайном фундаменте: половые лаги 50х200мм, доска 100x25мм., ОСБ плита 12мм, утепление 100мм пеноплекс, теплые водяные полы, чистовая стяжка 60-80мм.
В комплектации без теплых полов утепление 200мм, ОСБ/ЦСП.
В комплектации на бетонном фундаменте: утепление 100мм пеноплекс, теплые водяные полы, чистовая стяжка 60-80мм.
Внешние стены: Каркас стен (стойки, ригеля, диагональные укосины) выполняется из доски сечением 50×150 мм камерной сушки. + перехлест 50х50мм.
Снаружи (с улицы) стены обшиваются имитацией бруса / профлист (возможны другие варианты).
Стены утепляются теплоизоляционными плитами URSA либо аналоги, 200мм. (150мм по стойкам и 50мм в перехлест). С внешней стороны прокладывается паропроницаемая пленка.
Внутренняя отделка: Стены обшиваются евро-вагонкой штиль (камерной сушки), гипсокартоном 12мм и ОСБ 12мм в зоне повышенной влажности. Прокладывается пароизоляция.
Перегородки: Каркас перегородок выполняется из бруса сечением 50×100 мм. Шумоизоляция перегородок Теплоизоляционные плиты «URSA» или аналоги, толщиной 100 мм. Прокладывается пленка паропроницаемая.
Потолок: Евро-вагонка штиль хвойных пород класса АБ, (камерной сушки). Прокладывается пароизоляция.
Крыша:
Стропильная система: выполняется из бруса сечением 50×200 мм. (камерной сушки), Обрешетка выполняется из обрезной доски 25х100 мм.
Кровля металлочерепица / профлист / кликфальц с доплатой.
Окна: Окна ПВХ, двухкамерные, (Возможность ламинации за доп плату), с фурнитурой, отливами. В количестве согласно проекту.
Двери: входные ПВХ
Вытяжка: Механические клапаны приточной вентиляции устанавливаются в комнатах, электрические в с/у.
Терраса: Лиственница, без ограждений и лестниц
Коммуникации внутри дома: Разводка коммуникаций в пределах дома: электрики 4 точки на каждые 10м2 (выключатели/розетки/точка освещение), водопровода 7 точек, канализации 4 точки. Без котла и бойлера и без их обвязки. Теплые водяные полы на первом этаже.
- Дом на свайном фундаменте без учета коммуникаций
- Дом на свайном фундаменте с электрикой / водопроводом / канализацией в пределах дома
- Дом на свайном фундаменте с электрикой / водопроводом / канализацией и теплыми водяными полами в пределах дома
- Дом на бетонном фундаменте с электрикой / водопроводом / канализацией и теплыми водяными полами в пределах дома
Внешняя и внутренняя покраска, межкомнатные двери, покрытие пола, укладка плитки в душевой, стены душевой остаются в черновой отделке ГКЛ, установка инсталляции, унитазов, умывальника, бойлера, электрокотла, всей прочей посуды связанной с сантехникой, установка освещения в комнатах и с наружи, лестницы террас и главного входа, отделка фундамента.
- Кликфальц (в стандартном проекте металлочерепица/профлист)
- Ламинация окон в цвет (односторонняя / двухсторонняя)
- Отделка фасада лиственными породами
- Увеличенные панорамные окна
- Стекло с зеркальным эффектом
- Покраска (внешняя / внутренняя)
Описание проекта
Смотрите наши обзоры
Смотрите видео-презентации наших готовых проектов. Узнайте, какой дом вас ждёт!
Строим качественные каркасные дома и бани под ваш бюджет
Строим качественные каркасные дома и бани под ваш бюджет
Мы — надежный застройщик с 15-летним опытом, который прошел через экономические кризисы и пандемию, но всегда сохранял качество своих проектов.
Мы работаем с проверенными бригадами и следим за каждым этапом строительства, чтобы ваш дом был построен по всем стандартам безопасности и с максимальной отдачей за ваш бюджет.
Вы можете прямо сейчас пройдите тест
и получите стоимость строительства дома!
Ответьте на несколько простых вопросов
